Skip to page content

Ag Modular Living Units

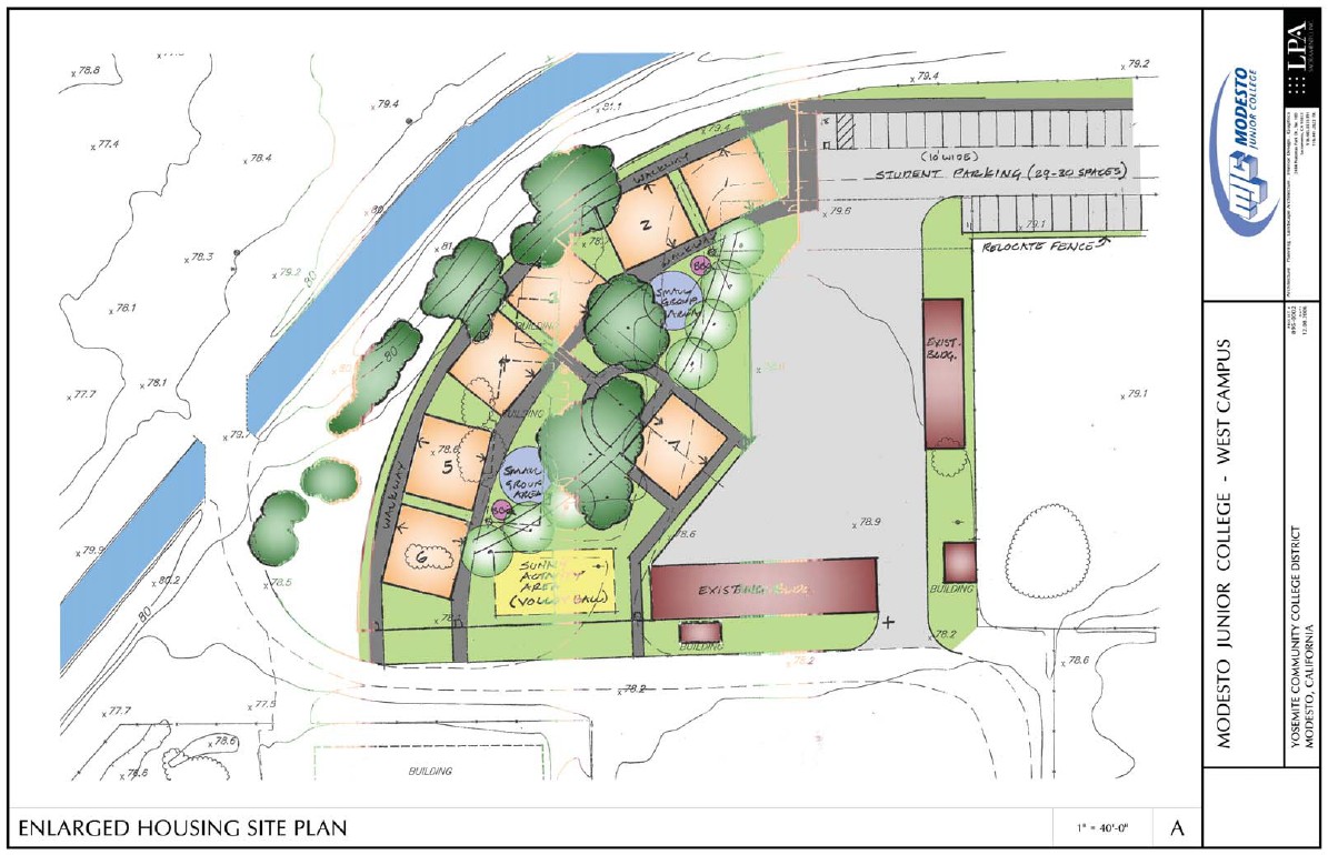
MJC Ag HousingProject: Ag-Modular Living Units / Student Housing

General Use: Living Units. 7 Units, 28 Beds.

Square Feet: 10,080 gsf

Status: Completed

Architect: LPAS

Contractor: Diede Construction

Final Cost: $3,149,906.74

Construction Start: June 8, 2009

Opening: December 1, 2009

Project Goal

To provide adequate housing for students who work with animal facilities.

Overview

Seven modular living units are proposed to be constructed on MJC's West Campus for the students who live and work on the animal facilities. The work performed and experience gained by this student workforce is crucial to the functioning of day-to-day operations of the college animal units and is vital to this educational program. Currently students who perform this role for MJC live in mobile homes/trailers and recreational vehicles on campus.

News

Project is complete and students have moved into the living units.

​Project Status Updates

Earlier updates have been archived. Please contact the webmaster for access.

​Links of Interest

MJC Ag Housing Presentation, April 2009 (1Mb)

MJC Ag Housing Presentation, September 2009 (1.35 Mb)